Mehrfamilienhaus - Hütteldorf bei Atzenbrugg

Mehrfamilienhaus - Hütteldorf bei Atzenbrugg

Eigentumswohnhaus

mit 4 Eigentumswohnungen

Wohnungen frei gestaltbar. Vorschläge:

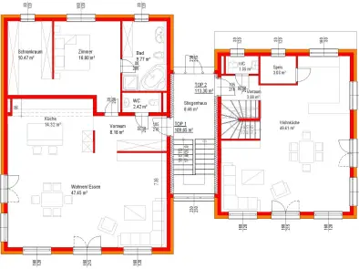
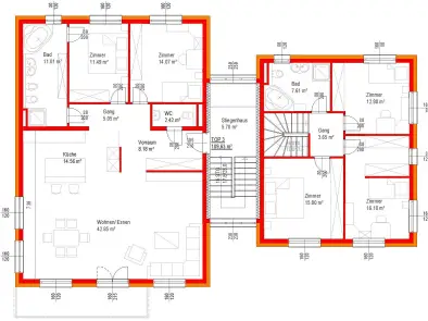
Top 1: 109,65 m² - 2 Zimmer (große Wohnküche, Zimmer mit Schrankraum) mit Garten ident mit Top 3 auch mit 3 Zimmern umsetzbar

Top 2: 113,30 m² - 4 Zimmer Maisonette auf zwei Ebenen mit Garten

Top 3: 109,63 m² - 3 Zimmer mit Balkon

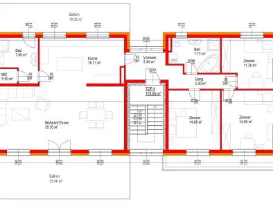
Top 4: 126,08 m² - Dachgeschoßwohnung 4 Zimmer mit zwei Terrassen

Dachform: Satteldach (17°) bzw. Steildach (25°)


Ausführung: Massiv-bauweise

Fläche:

verbaute Fläche: 223,74 m²

Entwurf:

 

Visualisierung:

 

Animation:

Mit dem Klick auf den folgenden Button lade ich bewusst Inhalte von der externen Website: youtube.com.

 

 

Wir freuen uns auf Ihre Kontaktaufnahme! Nutzen Sie die Möglichkeit eines kostenlosen Erstgesprächs vor Ort bei dem die wesentlichen Parameter für Ihr Projekt definiert werden

Diese E-Mail-Adresse ist vor Spambots geschützt! Zur Anzeige muss JavaScript eingeschaltet sein.