Mehrfamilienhaus

Mehrfamilienhaus

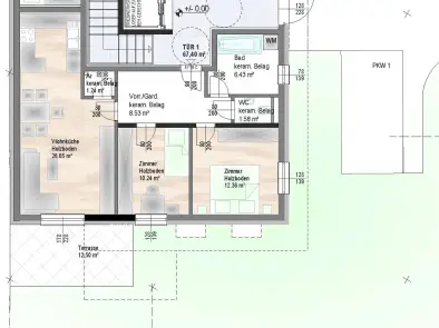
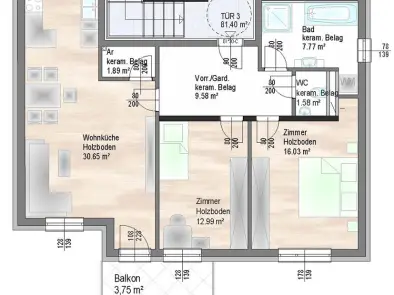
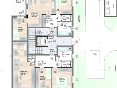
Eigentumswohnhaus Energiespargebäude

6 Eigentumswohnungen von 61,80 - 81,40 m². Wohnungen mit Garten oder Balkon

Dachform: Mansarddach (7°/ 45°)

Kniestock: ab 0,50 m

Anzahl der Zimmer: 3 pro Wohnung


Ausführung: Massivbauweise

Fläche:

verbaute Fläche: 191,99 m²

Animation:

 

 

Wir freuen uns auf Ihre Kontaktaufnahme! Nutzen Sie die Möglichkeit eines kostenlosen Erstgesprächs vor Ort bei dem die wesentlichen Parameter für Ihr Projekt definiert werden

Diese E-Mail-Adresse ist vor Spambots geschützt! Zur Anzeige muss JavaScript eingeschaltet sein.