Doppelhaus in Stammersdorf

Doppelhaus in Stammersdorf
Wir unterstützen unsere Partner bei der Entwicklung von Ein- und Mehrfamilienhäusern mit Entwurfsplanung, Einreichplanung und 3D-Visualisierungen.
 
Mit Baucoaching zu Ihrem optimierten Projekt: Wir entwickeln maßgeschneiderte Wohnlösungen und unterstützen bei der Umsetzung.
 
 
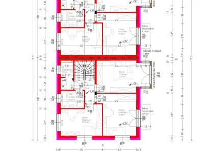
Infos zum Projekt - Doppelhaus belags- oder schlüsselfertig:
 
Dachform: Mansarddach
 
Raumhöhe: 2,52 m
 
Ausführung: Ziegel massiv
 

Fläche:

 
Fläche verbaut: Doppelhaus mit 154,30 m² - 77,10 m² pro Doppelhaushälfte
 
Wohnnutzfläche Doppelhaus: 146,91 m² -  56,97 m² EG und 59,37 m²  OG und 30,57 m² DG
 
 
 Video:

Stammersdorf

Video:

 

Mit dem Klick auf den folgenden Button lade ich bewusst Inhalte von der externen Website: youtube.com.

 

Kommen Sie Ihrem Wohntraum einen Schritt näher und fordern Sie Detailinformationen an!

 Diese E-Mail-Adresse ist vor Spambots geschützt! Zur Anzeige muss JavaScript eingeschaltet sein.
Wir freuen uns auf Ihre Kontaktaufnahme! Nutzen Sie die Möglichkeit eines kostenlosen Erstgesprächs vor Ort bei dem die wesentlichen Parameter für Ihr Projekt definiert werden