Mehrfamilienhaus - Schoeppelgasse 13

 Mehrfamilienhaus - Schoeppelgasse 13

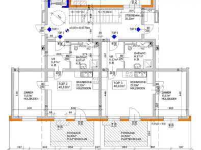
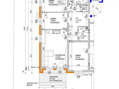
Eigentumswohnhaus Energiespargebäude

11 Eigentumswohnungen von 49 - 79 m². Wohnungen mit Garten, Balkon oder Dachterrasse.

Grünruhelage in der Nähe des Erholungsgebiet Donauauen

 Entwurf:

 

 

Umsetzung:

 

Mit dem Klick auf den folgenden Button lade ich bewusst Inhalte von der externen Website: youtube.com.

 

Wir freuen uns auf Ihre Kontaktaufnahme! Nutzen Sie die Möglichkeit eines kostenlosen Erstgesprächs vor Ort bei dem die wesentlichen Parameter für Ihr Projekt definiert werden

Diese E-Mail-Adresse ist vor Spambots geschützt! Zur Anzeige muss JavaScript eingeschaltet sein.