THEWOSAN Sanierung Wohnhaus Wien

THEWOSAN Sanierung Wohnhaus Wien

Sanierungsoffensive 2019. Es wird wieder gefördert!  - wohnnet:

Insgesamt stehen für die "Sanierungsoffensive 2019" 42,7 Millionen Euro zur Verfügung. Schwerpunkte sich die Gebäudesamierung und der "Raus aus dem Öl" Bonus.

Was wird wie hoch gefördert?

  • 5.000 Euro „Raus aus Öl“ - Bonus stärkt den  Fokus auf Ersatz von Ölheizungen
  • Bei gleichzeitiger thermischer Sanierung des Hauses erhöht sich der „raus aus dem Öl“-Bonus auf bis zu 6.000 Euro
  • Bereits saniert + Umstellung des fossilen Heizsystems: bis zu 5.000 Euro Förderung
  • Einzelbaumaßnahme + Umstellung des fossilen Heizsystems: bis zu 8.000 Euro Förderung
  • Umfassende Sanierung + Umstellung des fossilen Heizsystems: bis zu 11.000 Euro Förderung
  • Gefördert werden Holzzentralheizungen, thermische Solaranlagen sowie Nah-/Fernwärme- anschlüsse inkl. Um- und Rückbau der Heizzentrale; Förderung von Wärmepumpen nur bei umfassenden Sanierungen
  • Umfassende und Teilsanierungen auch ohne Heizungstausch: bis zu 6.000 Euro Förderung

 

Wie komme ich zur Förderung? Die Antragstellung ist ab 01.03.2019 ausschließlich online möglich. Der Online-Antrag ist vollständig ausgefüllt und mit allen geforderten Beilagen abzuschließen. Anträge können so lange gestellt werden, wie Budgetmittel vorhanden sind, längstens jedoch bis zum 31.12.2019. Die Lieferung von Materialien und die Umsetzung der geförderten Maßnahmen müssen zwischen dem 01.01.2019 und dem 30.06.2021 erfolgen. Hier geht´s zur Förderung!

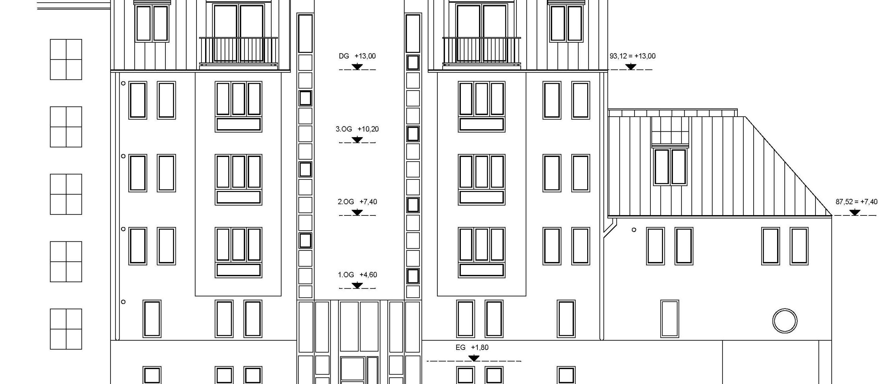
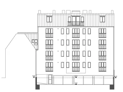
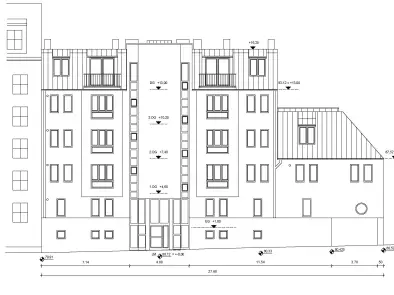
CAD Erfassung eines Wohnhauses zur Erlangung der Baugenehmigung für die Renovierung.

Infos zur Konzeption und Umsetzung Ihres Projektes anfordern

Fotos - Animation: